THE AERIES: Palm Springs Energy-Efficient Office Building
This project challenged us to create a mixed-use office/retail/restaurant building next to the airport in Palm Springs, CA, utilizing energy-efficient principles. This space features a three-story waterfall cascading over a two-story conference/convention space and a first floor restaurant. The waterfall serves as a noise barrier and thermal heat neutralizer, while the 3-story, circular, perforated-panel wrap provides shading without foregoing views of the low desert and surrounding mountains.
MEDIEVAL GRINDS: Coffee Shop at a Fork-in-the-Road
This project challenged us to create a small-footprint coffee shop at a fork-in-the-road on Harbor Blvd. in Fullerton, CA. I wanted to design building that would be exciting and inviting from every angle, so I chose to work with Gothic Revival themes and create a drive-thru experience under the flying buttresses. The footprint is the size of a typical Taco Bell, but Medieval Grinds features a three-story vaulted ceiling and second & third story outdoor balconies.
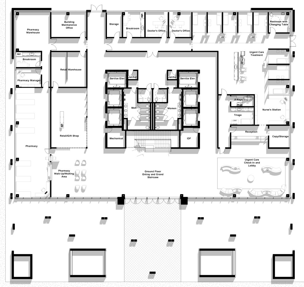
PEDIATRIC SPECIALTY CARE CLINICS OF LOS ANGELES: Downtown Los Angeles skyscraper
This project challenged us to create a 50-story office building on a small lot in downtown Los Angeles, CA. I chose to create a children’s medical office building, complete with a 50th floor, skyline-view restaurant and patient waiting areas in upper-level treehouses. The giraffe was designed to be seen while driving on a nearby freeway, delighting pediatric patients and their parents at a time when anxiety typically runs high.
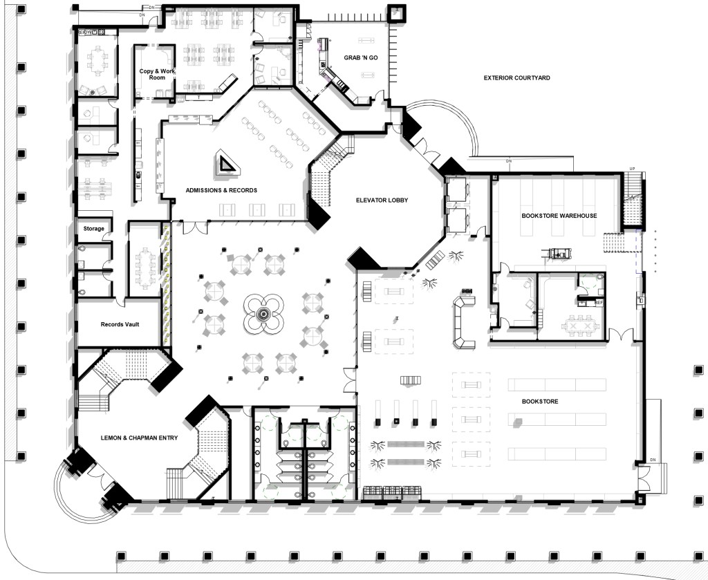
FULLERTON COLLEGE WELCOME CENTER: New campus building centralizing student services
This project challenged us to create a new two-story building that centralized student services. The building had to blend into the existing Spanish Revival architecture of the campus while housing ten major departments. For me, this was primarily a space planning challenge, and I endeavored to provide staff as much enjoyment from the building as students.
BUZZY’S NEST: Fullerton College Daycare
This project challenged us to design a new daycare facility for use by staff and students of Fullerton College. The building had to include a “holdout”–a small historic home situated on the designated property. I created a simple U-shaped design that shields children from street activity yet leaves a center courtyard open for outdoor play. The structure features hexagonal windows and skylights, while the courtyard is shaded by a large tensile-structure of the Fullerton College mascot, Buzzy the Hornet. The courtyard-facing walls feature folding glass doors that create a flex-space perfect for outdoor celebrations under the wings of the light-filled, 30 ft. mascot! This was designed to be a new iconic structure for the college.









































